You've got questions, we've got answers
How to determine your price range
Everything you need to confidently buy your new home
What you need to know
Find trusted vendors in your area
Find utility information for your area
Send an email with a link to
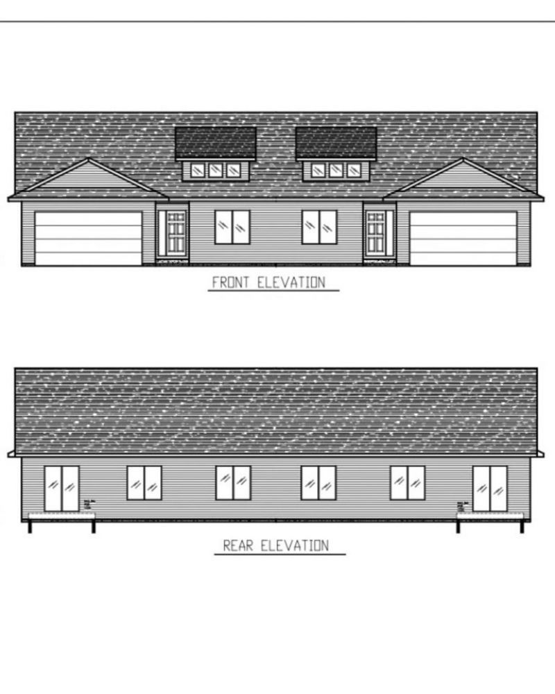
1161 Grant Way, North Liberty, IA 52317.
Zero-Lot home currently under construction by Monarch Homes. Foundation has been poured, and framing is underway, with an estimated completion of late May/early June 2026. This new construction will feature 4 bedrooms and 3 bathrooms with modern finishes and thoughtful design throughout. Photos will be updated as construction progresses. Secure this home early and have the opportunity to watch it come to life.
MLS ID: 202601600
Shown By
Agent Name: Chris Beason
Agent Phone: (563) 340-2763
Agency Title: Ruhl&Ruhl Realtors
Agent Email:
Shown By
Agent Name: Chris Beason
Agent Phone: (563) 340-2763
Agency Title: Ruhl&Ruhl Realtors
Agent Email:
Contact an agent to learn more about
1161 Grant Way, North Liberty, IA 52317.

Call or Click to get Pre-Approved!
563-441-1862
toll free 866-441-1862
Customize Your Rate
| Loan Type | 30 Year Fixed | FHA 30 Year Fixed | 15 Year Fixed |
| Purchase Price | $410,000 | $410,000 | $410,000 |
| Down Payment | $82,000 | $14,350 | $102,500 |
| Monthly Mortgage Amount | $1,967 | $2,414 | $2,513 |
| Taxes | $571 | $571 | $571 |
| Insurance | $100 | $100 | $100 |
| HOA/Dues/Fees | $0 | $0 | $0 |
| Monthly Mortage Insurance | $0 | $180 | $0 |
| Monthly Estimated Total | $2,658 | $3,285 | $3,204 |
As of the 2010 census, the population of North Liberty was 13,374 people. From the years of 2000-2010, North Liberty has been the second fastest growing town in Iowa. Continue browsing this page to see all real estate options and houses for sale in North Liberty, IA. North Liberty is located outside of Iowa City. View homes for sale in the Iowa City area for more real estate options.
Are you interested in a real estate career?
Nearest Ruhl&Ruhl Office
1075 Highway 1 West
Iowa City, IA 52246
Phone Number: (319) 339-8111